Kitchen Renovation: Budgewoi, Central Coast

Stunning Kitchen Renovation in Budgewoi – A Perfect Blend of Style and Functionality

Envision Kitchens recently completed a stunning kitchen renovation at 5 Woodlawn Drive in Budgewoi, transforming the heart of the home into a stylish and functional space that perfectly complements the coastal lifestyle.

The layout was thoughtfully designed to maximise space, improve workflow, and create an inviting atmosphere for cooking and entertaining. With a focus on both aesthetics and practicality, this kitchen now offers ample storage, clean lines, and a cohesive design that elevates the entire home.

This Budgewoi renovation is a testament to Envision Kitchens’ commitment to quality craftsmanship and attention to detail. The combination of premium materials, state-of-the-art appliances, and expert design has resulted in a timeless kitchen that perfectly balances style and function.

Check Out the Before Image

Take a look at the before image of the kitchen prior to its transformation. The original space was outdated and lacked the modern functionality and style the homeowners desired. This renovation highlights just how much thoughtful design, premium materials, and quality craftsmanship can completely revitalise a kitchen, turning it into a stunning and practical centrepiece of the home.

 
 

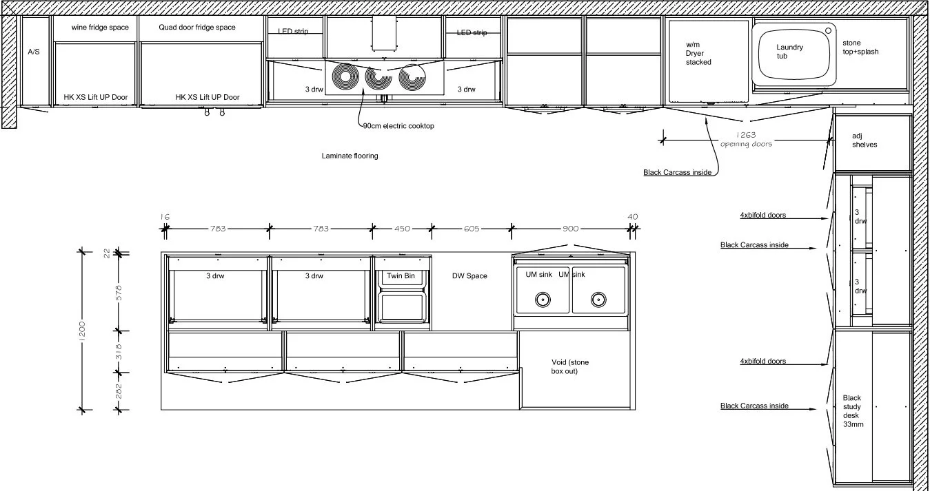
Now That You've Seen What We Were Working With…

Now that you’ve seen the original space, let’s dive into the new design and floor plan. The updated layout focuses on maximising functionality, improving workflow, and creating an open, inviting atmosphere. With sleek finishes, premium materials, and smart storage solutions, the new kitchen design not only enhances aesthetics but also delivers a practical space perfect for cooking, entertaining, and everyday living.

 
 

This thoughtfully designed kitchen balances style and functionality, combining premium materials, state-of-the-art appliances, and clever storage solutions to create a beautiful and practical space perfect for modern living.

The renovation features Polytec Black Woodmatt doors, chosen for their sleek, matte finish and sophisticated texture. This premium material adds a modern edge while bringing warmth and elegance to the space, creating a striking contrast against lighter benchtops and splashbacks.

To enhance functionality and ensure smooth operation, we incorporated high-quality Blum White Antaro drawers throughout the kitchen. Known for their durability and soft-close technology, these drawers offer seamless usability and long-lasting performance, making everyday kitchen tasks effortless. The addition of Momo Ona Lip Brush Black handles perfectly complements the cabinetry, adding a sleek and modern touch.

A standout feature of this renovation is the installation of Double Fisher & Paykel Built-In Wall Ovens, which not only elevate the kitchen’s aesthetic but also provide enhanced cooking capacity and versatility. These premium ovens are perfect for home cooks and entertainers alike, offering cutting-edge features and reliable performance. The kitchen also includes a sleek electric cooktop for efficient and precise cooking.

For added convenience and luxury, the kitchen boasts a spacious side-by-side fridge alongside an adjacent wine cellar fridge, providing ample food storage and a dedicated space for keeping your favourite bottles perfectly chilled. LED strip lighting has been installed throughout, enhancing both the functionality and ambience of the space.

The centrepiece of the renovation is the stunning island bench, which houses dual sinks, a dishwasher, hidden bins, and ample storage, making it the ultimate workspace and gathering point.

Adding to the versatility of the space, a black built-in study desk has been seamlessly integrated, providing a dedicated area for work or study without compromising the kitchen’s cohesive design.

 
 

Concealed Laundry Integration

Adding to the clever use of space, a concealed laundry has been seamlessly integrated to the right of the ovens. Hidden behind matching Polytec Black Woodmatt doors, the laundry area remains discreet yet functional, offering practicality without compromising the sleek kitchen design. This thoughtful addition ensures that the kitchen remains uncluttered while maximising the utility of the space.

 

Envision Kitchens specialises in kitchen renovations on the Central Coast as well as laundry, joinery, and manufacturing services.

We provide a complete range of joinery solutions, including new kitchen installations, kitchen renovations on the Central Coast, alfresco/outdoor kitchens, custom office desks and workstations, wardrobes, entertainment units, and many other custom-built joinery pieces.

If you're looking for expert kitchen renovations in Budgewoi or have a custom joinery project in mind, feel free to get in touch for a quote!

ProjectsMark Savage